Project Description

16/08/22

San José: Se aprobó una ordenanza de excepción para construir una escuela

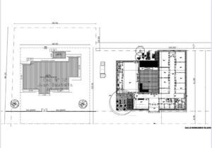
El viernes 12 de agosto, en la Sesión Extraordinaria se aprobó la Ordenanza 29/2022, la cual exceptúa del cumplimiento de algunos puntos del Código Urbano y de Edificación para la construcción de un nuevo edificio, donde funcionará la Escuela N.° 10 “Juan Bautista Alberdi”, de Barrio El Colorado.

Esta excepción fue otorogada ya que existen prototipos predeterminados para la construcción de escuelas secundarias en la provincia. Al implantar dicho prototipo en el terreno disponible, se incumplía con lo exigido por el Código Urbano y de Edificación en cuanto a retiros en fondos y alturas de construcción. El proyecto fue presentado por Infraestructura del Consejo General de Educación de la Provincia ante la Dirección General de Infraestructura de la Nación para buscar financiamiento.

Se debió llamar a Sesión Extraordinaria debido a que los plazos administrativos para presentar la documentación vencen el próximo 20 de agosto del corriente.

PPA SAN JUSTO!
Diseñamos tu Sitio Web... Con el valor mas bajo!